总务部关于南校园162栋“一站式”学生社区建设工程的施工公告
发布人:费龙
发布日期:2025-09-08
各位师生:
根据学校发展规划,南校园本科生集中住宿的162栋架空层约900平方米的空间将建设成为具有中大特色的“一站式”学生思政教育示范社区,打造“党建+思政”的实体教育基地,为同学们开辟一个全新的活动场地。目前,我部已完成工程招标,即将启动施工。现将施工安排公告如下:
一、主要施工内容
房间墙面间隔、天花铺设,新建洗手间,水电敷设装饰工程等。
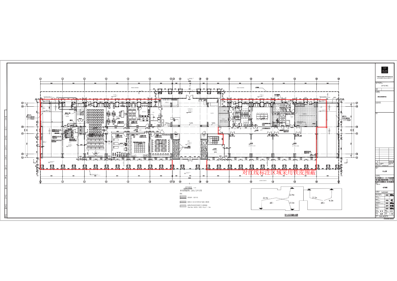
二、施工围蔽范围
南校园162栋架空层(详见附件)。
三、施工时间
(如遇不可抗力原因,时间可能顺延)
2.每日计划作业时间:上午8:00-12:30,下午14:30-22:00
四、注意事项
施工期间,架空层将全部封闭。
五、联系方式
联系单位 | 联系人 | 联系电话 |
职能部门 总务部基建与修缮处 | 王老师 | 020-84112300 |
使用单位 党委学生工作部 学生事务管理办公室 | 黄老师 | 020-84110342 |
施工单位 深圳市兴宏达 建设工程有限公司 | 陈工 | 13570908739 |
监理单位 广东财贸建设工程顾问有限公司 | 孟工 | 15914331376 |
感谢各位老师和同学对学校工作的理解、支持和配合。施工过程中若有任何问题,请随时与我们联系。
总务部
2025年9月6日
附件:施工围蔽示意图

